Easy Fast

Carport Easy Fast, pensilina in acciaio zincato a due posti - Msolar

Descrizione

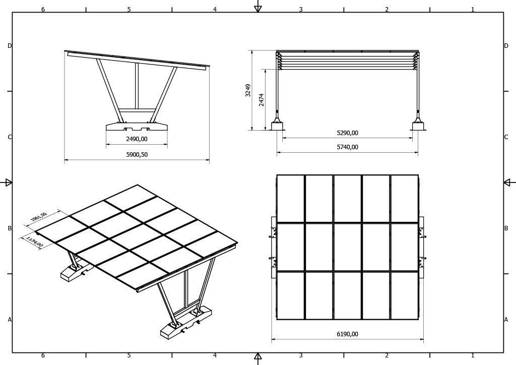
Struttura compatta in acciaio zincato a caldo, modulare e predisposta per l'installazione di moduli fotovoltaici. Ideale per uno o più posti auto in ambito residenziale. Configurabile in base a dimensioni e carichi.

Tavole di progetto

Tavola tecnica progetto Easy Fast - Tavola Tettoia Easy Fast 01.jpg Tavola tecnica progetto Easy Fast - Tavola Tettoia Easy Fast 02.jpg

Ambito ideale: Abitazioni private, piccoli spazi.

Msolar fornisce la struttura metallica portante.

Caratteristiche tecniche

StrutturaAcciaio zincato a caldo
ModularitàConfigurazioni multiple
Predisposizione fotovoltaicoSì, con partner
FinitureZincatura; verniciatura su richiesta
Richiedi preventivo